Ultimate W-90 Slim: Когда окно становится искусством исчезновения

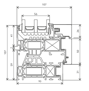
Серия Ultimate W-90 Slim на базе профиля Schüco AWS 75.SI+ — это вершина минимализма в алюмо-деревянных конструкциях. Главная особенность системы заключается в дизайне створки: снаружи она полностью скрыта за рамой или выполнена в виде сплошного структурного остекления.

Это создает визуальный эффект монолитной стеклянной плоскости без лишних переплетов.

  • Эффект панорамы: Полностью стеклянная створка снаружи создает эффект «стеклянной стены», что идеально для зданий в стиле модернизма и хай-тека.
  • Рекордное остекление: Возможность установки сверхтолстого структурного стеклопакета до 64 мм обеспечивает непревзойденные показатели звукоизоляции и теплосбережения.
  • Скрытая механика: Использование фурнитуры Schüco AvanTec SimplySmart подчеркивает чистоту линий — внутри помещения видны только благородная древесина и элегантная ручка.

Представьте себе стену, которая не разделяет, а объединяет вас с окружающим миром. Ultimate W-90 Slim — это не просто окно, это портал в мир безупречного минимализма, где технология Schüco встречается с теплом живой природы.

Магия невидимости

Главный секрет системы — в её способности «исчезать». Снаружи вы видите лишь бесконечное полотно стекла, монолитное и чистое, словно застывшее зеркало озера. Никаких лишних переплетов, никакой визуальной тяжести — только архитектурный ритм вашего дома в стиле хай-тек или модернизм. Створка коварно прячется за рамой, оставляя место лишь для чистого света.