ODR AL W SPS-204 Slim: Эффект стеклянной стены

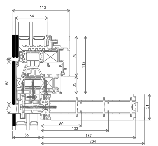
Система ODR.AL.W.SPS-204 Slim представляет собой дерево-алюминиевое решение для структурного фасадного остекления.

  • Эффект «стеклянной стены»: Снаружи отсутствуют видимые прижимные планки и рамки, что создает лаконичный современный облик здания.
  • Комбинированные материалы: С внешней стороны используется долговечный алюминий, устойчивый к атмосферным воздействиям, а изнутри — натуральный массив дерева, обеспечивающий уют и премиальный вид интерьера.
  • Масштабность: Конструкция позволяет устанавливать крупногабаритные стеклопакеты толщиной 70 мм, что идеально подходит для панорамного остекления.
  • Универсальность интеграции: Система совместима с оконными блоками Schüco и любыми профилями с стандартным европазом, что расширяет выбор фурнитуры (Schüco AvanTec SimplySmart, STAC).