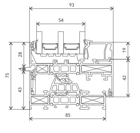
Серия ODR AL-85 разработана для тех, кто ищет качественное и долговечное решение для остекления жилых и коммерческих объектов. Благодаря строгой геометрии и компактной высоте профиля (75 мм), окна этой серии пропускают максимум естественного света, сохраняя при этом исключительную жесткость конструкции.
Дизайн: Система выполнена в стиле мягкого минимализма. Лаконичные линии профиля позволяют окнам ODR AL-85 органично смотреться как на фасадах современных бизнес-центров, так и в интерьерах частных домов, не перетягивая на себя лишнего внимания.
Максимальное заполнение: Уникальная конструкция позволяет устанавливать сверхтолстые стеклопакеты до 58 мм, что обеспечивает недосягаемый для обычных алюминиевых систем уровень шумоизоляции и энергосбережения.
Компактный световой проем: Высота профиля всего 75 мм делает конструкцию визуально легкой, расширяя панораму обзора.


ODR.AL-85: Окна, которые растворяются в пространстве
Вы когда-нибудь задумывались, насколько рама окна ограничивает ваш вид на мир? С системой ODR.AL-85 вы забудете о преградах.
Благодаря экстремально малой высоте профиля — всего 75 мм — мы подарим вашему дому максимум естественного света. Это тот самый «мягкий минимализм», который не перетягивает внимание на себя, а подчеркивает красоту вашего интерьера и ландшафта за окном. Тонкие линии, строгая геометрия и ощущение бесконечного пространства — это новый стандарт вашего комфорта.
