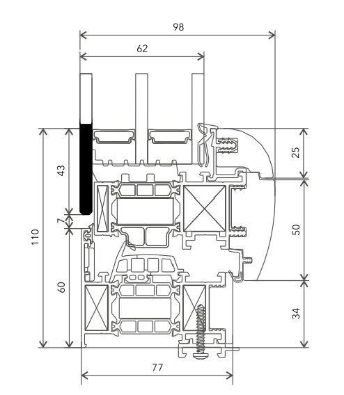
Система AlumWood W-77 Slim — это алюмо-деревянный профиль, созданный для проектов, где окно должно быть максимально легким и «растворенным» в пространстве. При минимальной ширине рамы (77 мм) система обладает уникальной геометрией, которая меняет восприятие окна в зависимости от угла обзора.
Инновационная конструкция штапика с изгибом «крыла» создает оптическую иллюзию: при взгляде «прямо» детали профиля исчезают, оставляя ощущение безрамного остекления и цельного стекла. При взгляде под углом открываются изящные плавные линии, подчеркивающие благородство натуральной древесины.
Стеклопакет: Несмотря на изящность профиля, система позволяет устанавливать структурные стеклопакеты толщиной до 64 мм, что гарантирует исключительную тишину и тепло в доме.
Экологичность и уют: Внутренняя отделка из натурального дерева с экологичным покрытием создает атмосферу комфорта, защищенную снаружи высокотехнологичным алюминием.


AlumWood W-77 Slim: Окно, которое умеет исчезать
Представьте окно, которое меняется вместе с вашим движением. Благодаря инновационному штапику в форме «крыла», AlumWood W-77 Slim играет с пространством.
- Смотрите прямо — и рама словно растворяется, оставляя вас один на один с пейзажем.
- Сделайте шаг в сторону — и плавные изгибы натурального дерева подчеркнут благородство вашего интерьера.
Это не просто остекление, это живая геометрия, созданная для тех, кто ценит чистоту линий и визуальную легкость. Всего 77 мм профиля, которые меняют всё.
